-
ANDYHL
2019-03-08 12:30:54
|
江苏
土建预算
|
975查看
1回答
砖基础超深计取脚手架费用
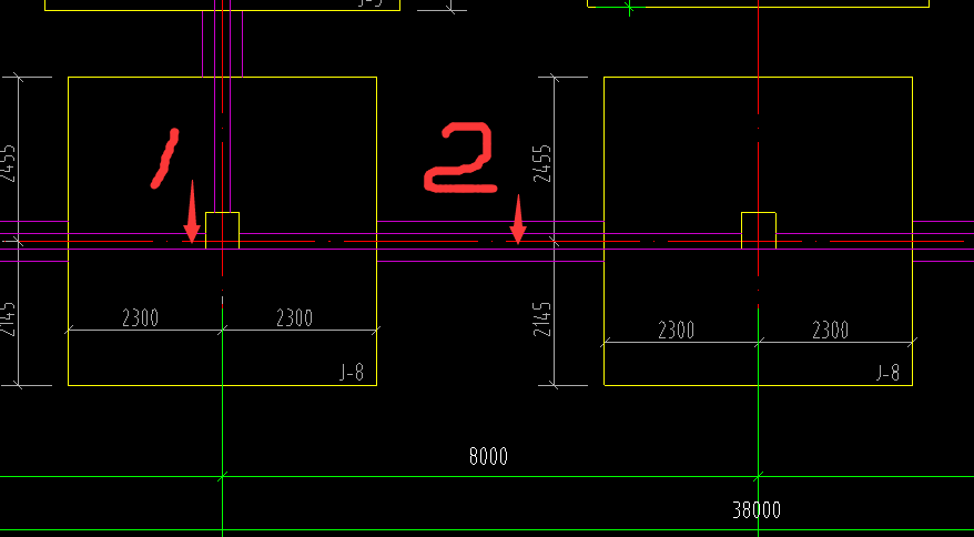
向大家求教,江苏定额,独立基础,基础深度超过1.5米,要计取脚手架费用。在独立基础坡面上砖基础高度没有超过1.5米如图1,在两个独立基础中间砖基础高度超过1.5米如图2,请问是只计取砖基础超过1.5米时的垂直投影面积吗?还是所有砖基础都算?如图1、2 哪部分要计取架手架费用?

全部回答
(1)
首答仅用{{minutesHtml}}
-
已采纳
应该是计取超过1.5米的基础的整体深度计算,如原设计1.2米,现由于超深由1.2变为1.6米,那就按1.6米去计算
首次提交 2019-03-08 12:36:50 最近修改2019-03-08 12:38:46 (修改过1次)






还有0条追问正在审核中,请稍后回来查看