软件下载
线下培训
软件教程
智能客服
购买咨询
建筑课堂
答疑解惑
新干线头条
资料下载
技能大赛
答疑专家入驻
课程讲师入驻
行业媒体入驻
设计专区
造价专区
施工专区
联系我们
合作推广
隐私政策
张 2018-11-23 14:22:04 | 山西 土建 | 2106查看 2回答
我的答案 答题人必看《优秀回答指南》
asfsdfsadfdsf
补充或更正我的问题
完善我的答案 答题人必看 《优秀回答指南》
全部回答 (2) 首答仅用{{minutesHtml}}
随风 专家
答题: 8018 被赞: 1641
2018-11-23 14:29:09
无网名 专家
答题: 2878 被赞: 2240
2018-11-23 14:34:57
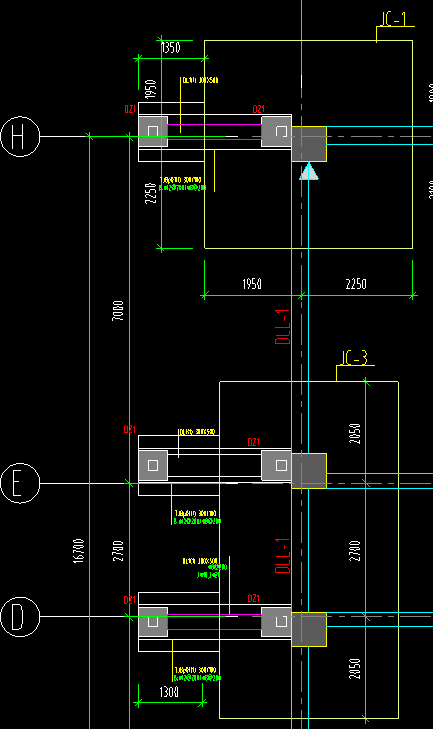
基础平面布置图
图中基础是条基还是独基?地梁跟基础是怎么布置呢?防水板设置在什么位置呢?
土建计量的基础平面布置图
请问土建计量中图一的地柱怎么定义,怎么画?图二表示什么意思呢?图三中图一部分的柱子那样是干嘛的
钢结构中结构平面布置图
里面的7/8 5/8 8/8是什么意思
施工平面布置图手绘的边框尺寸要求是多少
柱脚螺栓平面布置图里面的标识
YM1/6是什么意思 预埋1/6? 下面的意思是不是预埋八个M24的螺栓
如果没找到您想要的答案,试试直接提问吧!
尊敬的“{{nickname}}”,您好!
答疑解惑——建筑行业领先的互动问答平台
答疑解惑——建筑业(造价行业)领先的互动问答平台
您的问题已发布您的回答已提交
大多数问题会在7分钟内获得回答,感谢您的耐心等待
恭喜获得答题积分奖励,帮助他人,成就自己。
采纳优质答案,更可获得积分,兑换礼品哦!
高质量答案更易被采纳,获得额外高额积分奖励!
专家榜
数据更新时间 : 2026-03-06
天降福运!积分,经验值等福利在等着你哟,快来签到吧
还有0条追问正在审核中,请稍后回来查看