软件下载
线下培训
软件教程
智能客服
购买咨询
建筑课堂
答疑解惑
新干线头条
资料下载
技能大赛
答疑专家入驻
课程讲师入驻
行业媒体入驻
设计专区
造价专区
施工专区
联系我们
合作推广
隐私政策
哈哈 2018-08-10 14:29:54 | 山东 土建 | 7300查看 1回答
我的答案 答题人必看《优秀回答指南》
asfsdfsadfdsf
补充或更正我的问题
完善我的答案 答题人必看 《优秀回答指南》
全部回答 (1) 首答仅用{{minutesHtml}}
你看苍天饶过谁 专家
答题: 1759 被赞: 697
2018-08-10 14:32:25
关于挑檐的画法
我用异形梁做了个挑檐 设置为中线距离边线20 画的时候 朝上画 挑檐是朝外的 接着朝左和下画 挑檐怎挑出部分朝里了啊问题补充:我就画的第一道是朝外的 别的无论怎改变画的方向 挑檐始终朝里
屋檐的问题
屋檐画好后上部相交,多出了一块,下部没有相交,请问该如何处理?
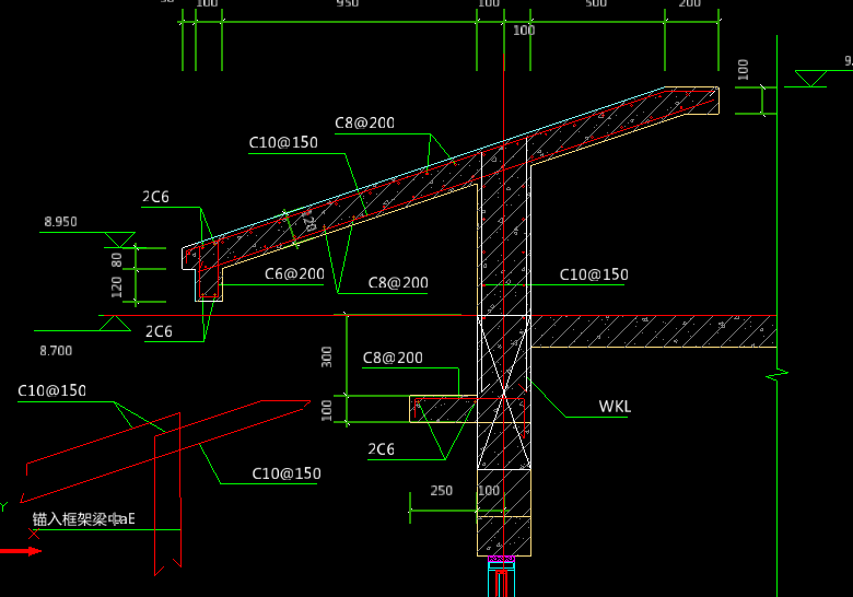
关于挑檐的钢筋画法
挑檐的钢筋是怎么画的 例如6c6和c8-150该怎么在截面编辑中画出来
关于土建台阶画法
老师好,定义台阶是不是要定义台阶和台阶地面两个内容呢,怎么画呢,谢谢你了老师。
关于外墙异形造型墙画法?
像这种缺角的墙体怎么画呢?
如果没找到您想要的答案,试试直接提问吧!
尊敬的“{{nickname}}”,您好!
答疑解惑——建筑行业领先的互动问答平台
答疑解惑——建筑业(造价行业)领先的互动问答平台
您的问题已发布您的回答已提交
大多数问题会在7分钟内获得回答,感谢您的耐心等待
恭喜获得答题积分奖励,帮助他人,成就自己。
采纳优质答案,更可获得积分,兑换礼品哦!
高质量答案更易被采纳,获得额外高额积分奖励!
专家榜
数据更新时间 : 2026-03-05
天降福运!积分,经验值等福利在等着你哟,快来签到吧
还有0条追问正在审核中,请稍后回来查看