-
凯老师
2018-06-09 10:49:42
|
江西
土建
|
551查看
1回答
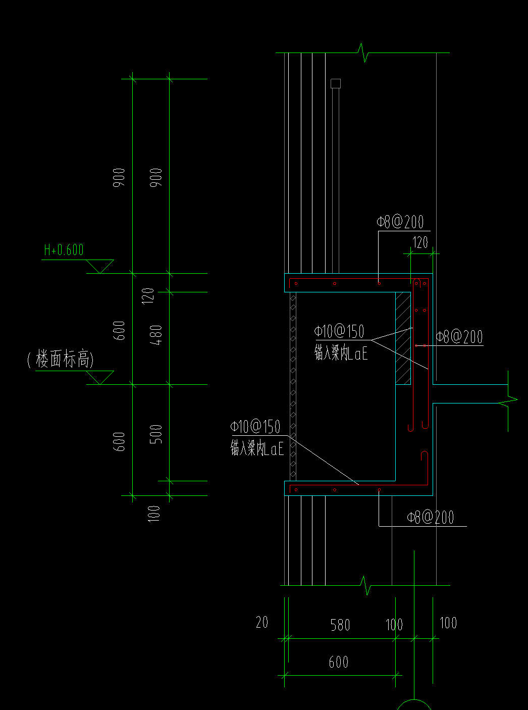
这个飘窗怎么定义钢筋信息怎么输入?

全部回答
(1)
首答仅用{{minutesHtml}}
-
已采纳答:就钢筋量而言,宜用自定义线的方法处理。例如下图的方法:




2018-06-09 10:53:36






还有0条追问正在审核中,请稍后回来查看