软件下载
线下培训
软件教程
智能客服
购买咨询
建筑课堂
答疑解惑
新干线头条
资料下载
技能大赛
答疑专家入驻
课程讲师入驻
行业媒体入驻
设计专区
造价专区
施工专区
联系我们
合作推广
隐私政策
苏 2018-04-10 15:22:22 | 广西 土建 | 730查看 2回答
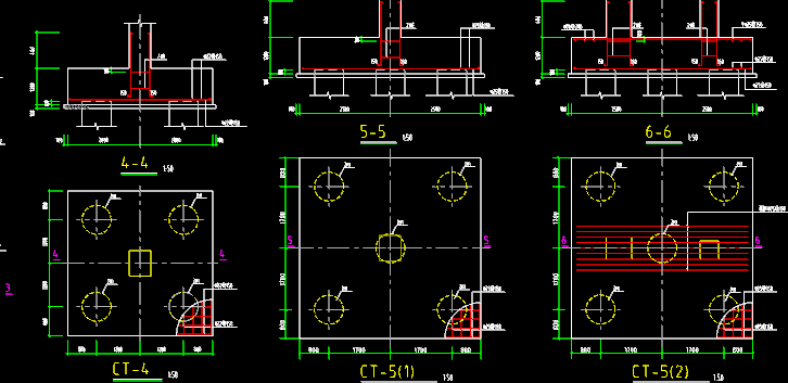
第三个的话,也是一样的吗?
我的答案 答题人必看《优秀回答指南》
asfsdfsadfdsf
补充或更正我的问题
完善我的答案 答题人必看 《优秀回答指南》
全部回答 (2) 首答仅用{{minutesHtml}}
维达詹工 专家
答题: 124968 被赞: 42726
2018-04-10 15:29:02
xagcc 钻石专家
答题: 332169 被赞: 79300
2018-04-10 15:25:40
这个桩承台要怎么定义
单桩承台怎么定义
桩承台怎么定义钢筋
你好,选择了桩承台,知道了是环形承台应该怎么去定义钢筋呢
各位大神,这种桩承台怎么定义??
桩承台里面的钢筋应该怎么定义
想问问这两个桩承台分别应该如何绘制?里面的钢筋应该怎么输入?麻烦各位大神详细点 第一次绘制桩承台不太懂
如果没找到您想要的答案,试试直接提问吧!
尊敬的“{{nickname}}”,您好!
答疑解惑——建筑行业领先的互动问答平台
答疑解惑——建筑业(造价行业)领先的互动问答平台
您的问题已发布您的回答已提交
大多数问题会在7分钟内获得回答,感谢您的耐心等待
恭喜获得答题积分奖励,帮助他人,成就自己。
采纳优质答案,更可获得积分,兑换礼品哦!
高质量答案更易被采纳,获得额外高额积分奖励!
专家榜
数据更新时间 : 2026-03-06
天降福运!积分,经验值等福利在等着你哟,快来签到吧
还有0条追问正在审核中,请稍后回来查看