-
DJ南北
2018-04-04 11:17:39
|
河南
土建
|
1862查看
4回答
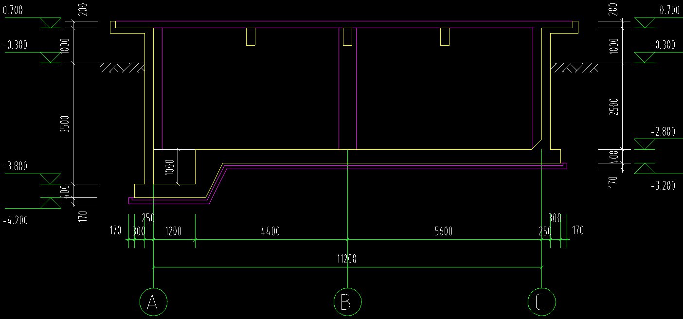
水池措施费如何计取?
如下图,水池剖面图,该计取哪些措施费及如何计取?
补充问题:除了模板其他的措施费,比如:垂直运输费、脚手架费或其他相关费用,计取的依据。
补充问题:需要具体的依据,比如脚手架,相关的规定及怎么计算。请不要回答没有依据的答案。
补充问题:在河南定额及宁夏定额中找不到相关的计价规范,其他省份的定额中有相关的规定吗?
全部回答
(4)
首答仅用{{minutesHtml}}
-
模板
2018-04-04 11:21:12
-
脚手架、模板等等,麻雀虽小,五脏俱全。
2018-04-04 11:24:51
-
除了模板,需要计算垂运和脚手架。依据就是定额的计算规则,你可以查阅一下
2018-04-04 11:28:43
-
你看看你们当地定额的建筑工程或者市政工程里的,构筑物隔油池化粪池相关章节肯定有
2018-04-04 12:54:04






还有0条追问正在审核中,请稍后回来查看