软件下载
线下培训
软件教程
智能客服
购买咨询
建筑课堂
答疑解惑
新干线头条
资料下载
技能大赛
答疑专家入驻
课程讲师入驻
行业媒体入驻
设计专区
造价专区
施工专区
联系我们
合作推广
隐私政策
浩克 2018-02-25 11:23:06 | 四川 土建 | 18623查看 2回答
我的答案 答题人必看《优秀回答指南》
asfsdfsadfdsf
补充或更正我的问题
完善我的答案 答题人必看 《优秀回答指南》
全部回答 (2) 首答仅用{{minutesHtml}}
薛子庆 黄金专家
答题: 20436 被赞: 6115
2018-02-25 11:32:46
将军峰 白银专家
答题: 169601 被赞: 97671
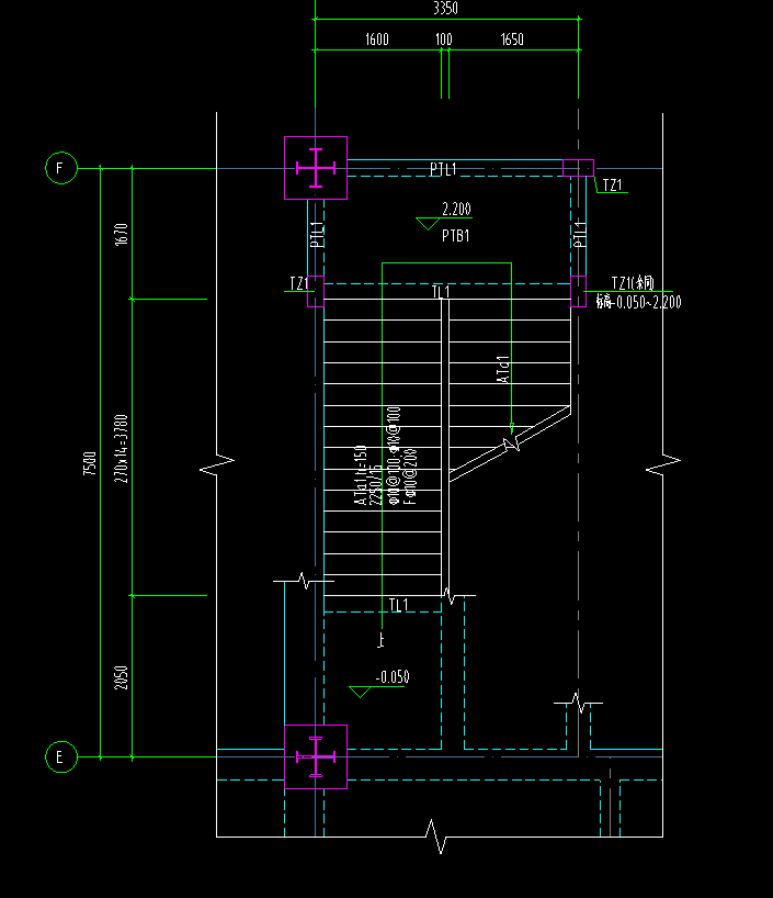
梯板配筋 C10@200 在设计图中 以及 给出了呀。
2018-02-25 11:29:46
梯梁的配筋图该怎么看
关于梯板配筋的问题
请问BT和CT的配筋怎样布置,是只布置上部或者下部还是上下都是B14-150?
独立基础顶部配筋在哪里输入
这个平台板的钢筋 说的配筋,该在哪里设置
这些斜梁怎么画呀?标高是多少呢?里面的配筋在哪里看
如果没找到您想要的答案,试试直接提问吧!
尊敬的“{{nickname}}”,您好!
答疑解惑——建筑行业领先的互动问答平台
答疑解惑——建筑业(造价行业)领先的互动问答平台
您的问题已发布您的回答已提交
大多数问题会在7分钟内获得回答,感谢您的耐心等待
恭喜获得答题积分奖励,帮助他人,成就自己。
采纳优质答案,更可获得积分,兑换礼品哦!
高质量答案更易被采纳,获得额外高额积分奖励!
专家榜
数据更新时间 : 2026-03-06
天降福运!积分,经验值等福利在等着你哟,快来签到吧
还有0条追问正在审核中,请稍后回来查看