-
平常心
2018-01-12 10:06:18
|
河南
土建
|
2153查看
2回答
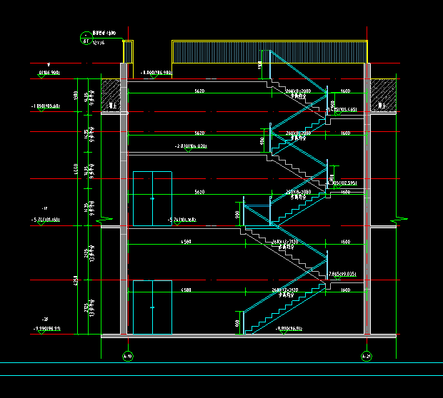
坡道的建筑面积
像这种坡道应该计算几次建筑面积,应不应该扣除一层坡道不足2.2坡道部分的面积
还有楼梯间的建筑面积应该计算几次建筑面积,最上层应不应该计算,一层的地面算不算我知道计算规则,就是很迷

全部回答
(2)
首答仅用{{minutesHtml}}
-
已采纳应该按3层考虑,1.2以下不计算建筑面积,1.2米到2.2米计算一半建筑面积,2.2米以上计算全部建筑面积
2018-01-12 10:08:58
-
1、第一问同意楼上答复,2、补充楼梯间建筑面积随建筑物层数计算
2018-01-12 10:24:40






还有0条追问正在审核中,请稍后回来查看