软件下载
线下培训
软件教程
智能客服
购买咨询
建筑课堂
答疑解惑
新干线头条
资料下载
技能大赛
答疑专家入驻
课程讲师入驻
行业媒体入驻
设计专区
造价专区
施工专区
联系我们
合作推广
隐私政策
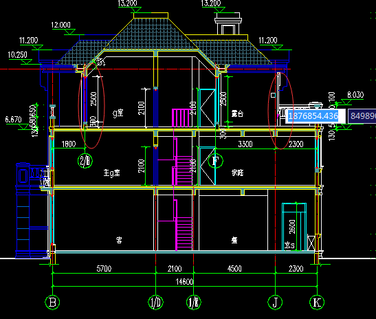
花开的方向 2017-09-25 21:11:12 | 山东 土建 | 1834查看 2回答
我的答案 答题人必看《优秀回答指南》
asfsdfsadfdsf
补充或更正我的问题
完善我的答案 答题人必看 《优秀回答指南》
全部回答 (2) 首答仅用{{minutesHtml}}
石姐 铂金专家
答题: 190200 被赞: 56681
2017-09-26 08:55:05
Eternal 专家
答题: 1875 被赞: 464
2017-09-25 22:03:53
山东省脚手架问题
这里的脚手架是用来绑钢筋用的嘛,为什么单独的梁还有。
山东省墙脚手架
山东省外墙都需要计算哪些脚手架,剪力墙还需要计算脚手架吗
在山东省定额内 地下室剪力墙有4米高 是否计算脚手架剪力墙脚手架 正负零以上的剪力墙层高在2.9米是否计算脚手架
山东省脚手架定额区分
外钢管脚手架和主体工程外脚手架的区别在什么地方?
山东省规定,条形基础计算脚手架么?
如果没找到您想要的答案,试试直接提问吧!
尊敬的“{{nickname}}”,您好!
答疑解惑——建筑行业领先的互动问答平台
答疑解惑——建筑业(造价行业)领先的互动问答平台
您的问题已发布您的回答已提交
大多数问题会在7分钟内获得回答,感谢您的耐心等待
恭喜获得答题积分奖励,帮助他人,成就自己。
采纳优质答案,更可获得积分,兑换礼品哦!
高质量答案更易被采纳,获得额外高额积分奖励!
专家榜
数据更新时间 : 2026-03-06
天降福运!积分,经验值等福利在等着你哟,快来签到吧
还有0条追问正在审核中,请稍后回来查看