软件下载
线下培训
软件教程
智能客服
购买咨询
建筑课堂
答疑解惑
新干线头条
资料下载
技能大赛
答疑专家入驻
课程讲师入驻
行业媒体入驻
设计专区
造价专区
施工专区
联系我们
合作推广
隐私政策
朋朋吴oioi 2016-12-17 22:31:41 | 山东 土建 | 1860查看 2回答
我的答案 答题人必看《优秀回答指南》
asfsdfsadfdsf
补充或更正我的问题
完善我的答案 答题人必看 《优秀回答指南》
全部回答 (2) 首答仅用{{minutesHtml}}
欢乐心中飞雪 钻石专家
答题: 143372 被赞: 46454
这样的独立基础要用柱墩定义绘制的
2016-12-17 22:42:11
朋朋吴oioi
答题: 3 被赞: 0
好的,谢谢,我刚才用独立基础设置了一下,发现钢筋量少很多,是不能根据他的尺寸设置成倒过来的独立基础是吗?
2016-12-17 22:44:05
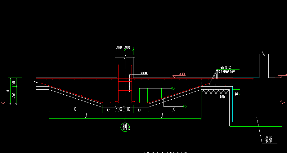
请问独立基础与车库筏板的交接 独立基础的钢筋怎么设置呢
主楼筏板与车库防水板相交设置问题
2022-03-17 18:09:06 补充
独立基础与筏板放坡怎么设置?独立基础钢筋不变,筏板基础下部钢筋锚入独立基础。
独立基础与筏板之间如何设置?
请问此处人防车库,主楼基础与防水板基础连接大样如何画
防水板是斜的,7#基础是平的,这中主楼与车库筏板连接该如何画
如果没找到您想要的答案,试试直接提问吧!
尊敬的“{{nickname}}”,您好!
答疑解惑——建筑行业领先的互动问答平台
答疑解惑——建筑业(造价行业)领先的互动问答平台
您的问题已发布您的回答已提交
大多数问题会在7分钟内获得回答,感谢您的耐心等待
恭喜获得答题积分奖励,帮助他人,成就自己。
采纳优质答案,更可获得积分,兑换礼品哦!
高质量答案更易被采纳,获得额外高额积分奖励!
专家榜
数据更新时间 : 2026-03-06
天降福运!积分,经验值等福利在等着你哟,快来签到吧
还有0条追问正在审核中,请稍后回来查看