-
胡阿尤~
2015-06-22 13:29:11
|
山东
土建
|
2550查看
2回答
关于雨棚钢筋算量的问题
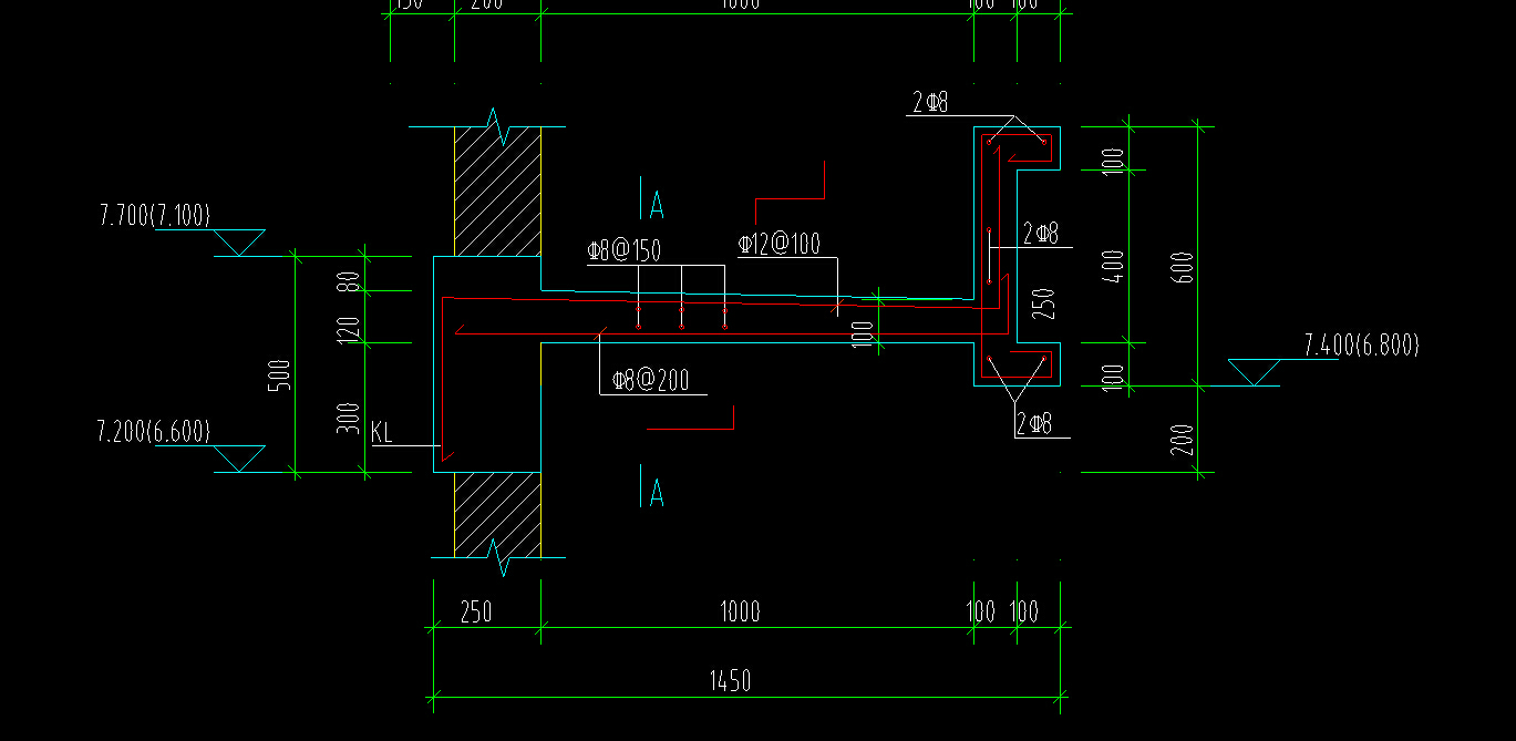
如图,因为这个雨棚需要手算,可是我不太会,看了公式还是看不懂,不知道怎么算,因为是初学,但是这个活着急要,就卡雨棚这了,麻烦各位老师辛苦一下,帮我算算钢筋的量,我要是能看懂不会在这问现成的,麻烦各位老师了。叩谢
全部回答
(2)
首答仅用{{minutesHtml}}
-
已采纳
如图,因为这个雨棚需要手算,可是我不太会,看了公式还是看不懂,不知道怎么算,因为是初学,但是这个活着急要,就卡雨棚这了,麻烦各位老师辛苦一下,帮我算算钢筋的量,我要是能看懂不会在这问现成的,麻烦各位老师了。叩谢
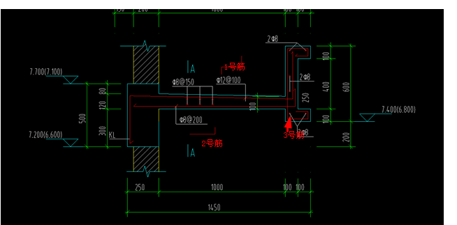
答:先用自定义线布置后,汇总计算,查看表格数据,里面有计算公式的。方法如下;
2015-06-22 20:50:58
-
1号筋=1450-20-15+300+120-40-30+400+100-120=2145
2号筋=1450-30-15+250=1655
3号筋=600-30+(200-30+100-30+100)*2=1250
根数为雨棚宽度-30除以间距加1
另一个方向的钢筋计算由于没有AA剖面图长度不知道。计算长度为雨棚宽度-两个保护层
2015-06-23 08:02:46






还有0条追问正在审核中,请稍后回来查看