软件下载
线下培训
软件教程
智能客服
购买咨询
建筑课堂
答疑解惑
新干线头条
资料下载
技能大赛
答疑专家入驻
课程讲师入驻
行业媒体入驻
设计专区
造价专区
施工专区
联系我们
合作推广
隐私政策
匿名用户 2015-02-04 20:46:04 | 山西 钢筋算量GGJ2013 | 1802查看 3回答
问题补充:还有就是怎么区分它是约束边缘暗柱还是约束边缘端柱呢?
我的答案 答题人必看《优秀回答指南》
asfsdfsadfdsf
补充或更正我的问题
完善我的答案 答题人必看 《优秀回答指南》
全部回答 (3) 首答仅用{{minutesHtml}}
小老百姓 白银专家
答题: 168971 被赞: 162778
附加箍筋本来是与箍筋隔一布一,你这个直接采用8@100及10@100就可以,不是先画剪力墙再在剪力墙上画它呢,那个图二已经明确先画端柱然后中间画剪力墙。
这个L型的就直接采用异形端柱绘制,在截面编辑里面编辑相应的箍筋,8@100编辑成开口箍筋就可以,反正剪力墙会锚固的,因此那个搭接长度就不用考虑。
2015-02-05 07:20:40
点点
答题: 3241 被赞: 102
2015-02-05 09:47:22
还有 1 条答案正在审核中,请稍后回来查看
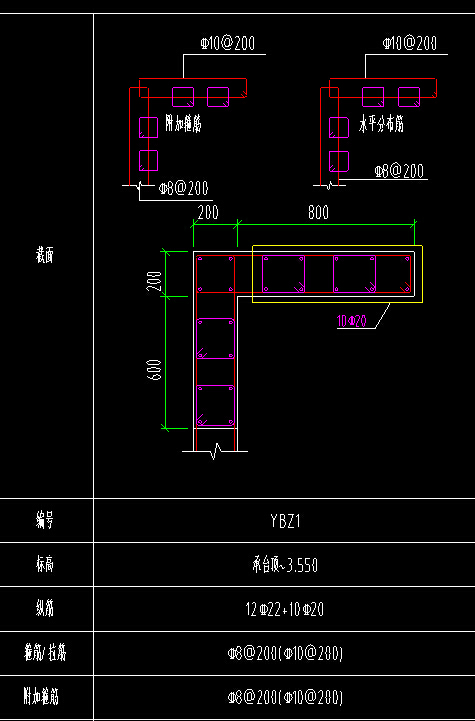
约束边缘柱如何画?
如图?
这个约束边缘柱怎么画?可以发个过程吗?
这里里面的拉筋在软件上要怎么画?补充问题: 改了一个的钢筋其他钢筋也变了,有解决的方法吗
剪力墙中约束边缘暗柱中约束边缘钢筋怎么布置合理呢?
这个暗柱钢筋怎么布置比较准确合理?约束边的钢筋怎么布置呢?
YYZ26约束边缘柱阴影部分拉结筋怎么设置
钢筋抽样里的约束边缘端柱里的钢筋怎么改啊
钢筋抽样里的约束边缘端柱自定义的钢筋跟实际的不一样 在软件中怎么改
如果没找到您想要的答案,试试直接提问吧!
尊敬的“{{nickname}}”,您好!
答疑解惑——建筑行业领先的互动问答平台
答疑解惑——建筑业(造价行业)领先的互动问答平台
您的问题已发布您的回答已提交
大多数问题会在7分钟内获得回答,感谢您的耐心等待
恭喜获得答题积分奖励,帮助他人,成就自己。
采纳优质答案,更可获得积分,兑换礼品哦!
高质量答案更易被采纳,获得额外高额积分奖励!
专家榜
数据更新时间 : 2026-03-06
天降福运!积分,经验值等福利在等着你哟,快来签到吧
还有0条追问正在审核中,请稍后回来查看