-
hbsjzhxp@163.com
2014-07-22 09:06:57
|
河北
土建
|
1918查看
3回答
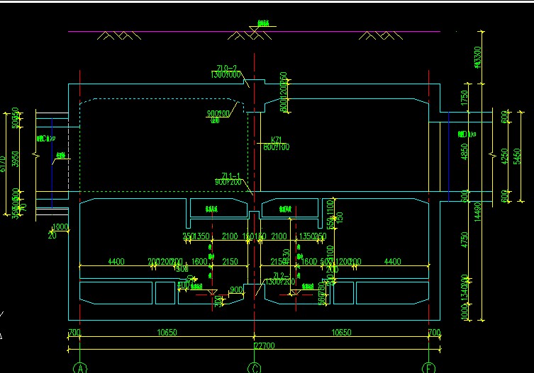
关于地铁梁侧墙侧加腋部分计算规则
看图,腋板应该算到板里还是梁里,靠墙部分应该算到板里还是墙里。
全部回答
(3)
首答仅用{{minutesHtml}}
-
已采纳腋板应该是并入板的体积计算,对于广东定额梁和板体积是合并为“有梁板”,那么并在哪是不影响的。
2014-07-22 09:21:15
-
已采纳在北京来说,应该计在墙里。
2014-07-22 09:24:13
-
已采纳梁和板
2014-07-22 09:31:02






还有0条追问正在审核中,请稍后回来查看